Mục lục
Sở hữu hình khối kiến trúc và mặt tiền ấn tượng, phối cảnh nội thất nhà phố 3 tầng có gara dưới đây là một trong phương án được nhiều chủ đầu tư yêu thích.
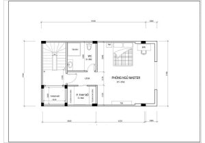
Diện tích mặt tiền tuy rộng nhưng chiều sâu ngắn, mảnh đất vô hình theo dạng hình chữ nhật vuông.Nếu không có giải pháp xử lý khéo léo thì không gian kiến trúc nhà đẹp và mặt bằng sẽ có sự sai lệch, dẫn đến nhiều bất cập trong quá trình sử dụng.
Việc kết hợp hình khối cắt với giật cấp, sử dụng vật liệu kính đan xen với khối bê tông sẽ giúp cho việc đón sáng và gió thoáng có sự phân bổ đồng đều và mới mẻ hơn.
Những mảng tường chạy đứng và hệ thống cửa đón sáng chạy thẳng từ tầng 1 đến mái, kết hợp với không gian tiểu cảnh ở sân trước giúp mẫu nhà ông trở nên hoàn hảo hơn.
