Mục lục
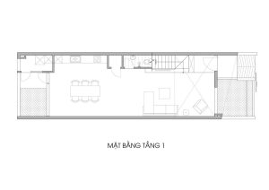
Được thiết kế theo phong cách hiện đại nhưng không hề đơn giản và nhàm chán như những mẫu nhà phố, nhà ống khác. Mặt tiền nhà gây ấn tượng với những mái lệch cùng những đường cắt độc đáo, mới lạ.
Những đường nét dứt khoát nhưng vô cùng mạnh mẽ được kết hợp hài hòa với nhau bên cạnh đó việc tối giản về màu sắc, họa tiết nhằm mang đến một mẫu nhà phố 2 tầng đẹp, đơn giản nhưng sang trọng.
Việc sử dụng màu xám, nâu đơn giản ở mặt tiền phía trước và sự tối giản về họa tiết thì màu sắc xanh của thiên nhiên tạo nên sự cộng hài hài hòa tuyệt vời. Có thể nói mặt tiền đơn giản nhưng không hề đơn điệu.
